Karte
Karte Dresden

Direktsuche
Objekt-ID:

Merkzettel    Merkzettel drucken
 
Adresse: 01309 Dresden - Striesen , Paul-Gerhardt-Straße
ID: 6619

Beschreibung:

Helle 4-Zimmer-Maisonette-Wohnung in ruhiger und grüner Lage von Dresden-Striesen in sehr hochwertigem Neubau mit folgenden Ausstattungsdetails:

* Wohnung hat 4-Zimmer und 131,5 m² Wohnfläche
* nur vier Wohnungen im Haus
* Lift im Haus, bis in beide Ebenen der Wohnung
* große Dachterrasse mit schönem Blick
* Wohnung hat komplett Fußbodenheizung
* energetisch sehr hochwertig, Fernwärme, Effizienzklasse B
* zwei hochwertige Bäder
* große Küche mit hochwertiger Einbauküche
* große Doppelgarage innerhalb der Tiefgarage
* großer und sehr trockener Keller, direkt an der Doppelgarage
* 22 m² großer Hobbyraum, direkt neben der großen Doppelgarage

Der Verkauf der Wohnung hat ausschließlich positive Hintergründe und die Wohnung wird im April 2026 frei, ohne dass es einer Kündigung bedarf.

Für 18.000,-€ ist noch ein ca. 22 m² großer Hobbyraum direkt neben der Doppelgarage dabei, welcher dem aktuellen Besitzer der Wohnung gehört. Dieser Raum ist ideal für diverse Hobbys, als Werkstatt, für eine Tischtennisplatte (oder andere sportliche Aktivitäten) oder für eine Billardplatte. Für diesen Hobbyraum gäbe es innerhalb des Hauses noch andere Kaufinteressenten, was aber im Nachgang mit einem gewissen formalen Aufwand verbunden wäre, da dieser Raum gemäß Grundbuch der zum Verkauf stehenden WE 03 zugeordnet ist.

Der Gesamtkaufpreis von Wohnung plus zwei Stellplätze in der Tiefgarage plus großem Hobbyraum beträgt 734.000,-€.

Weitere Informationen und Besichtigungen gerne auf Anfrage.

Energieausweis:
Baujahr:
2015
Objektzustand:
neuwertig
Heizungsart:
Zentralheizung
Befeuerungsart:
Fernwärme
Energiebedarf:
70 kWh (m²*a)
Typ:
Bedarfsausweis
Effizienzklasse:
B

Hausansicht
Hausansicht
 

Dachterrasse (mit Möblierungsvorschlag)
Dachterrasse (mit Möblierungsvorschlag)

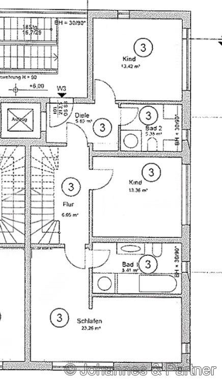
Grundriss 2.Obergeschoss
Grundriss 2.Obergeschoss
 

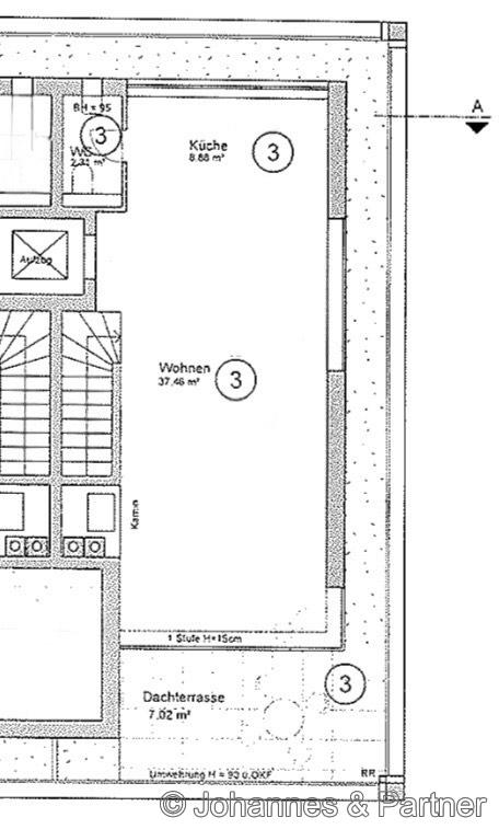
Grundriss Dachgeschoss
Grundriss Dachgeschoss

Zimmer
Zimmer
 

Zimmer
Zimmer

Wohnzimmer mit Zugang zur Dachterrasse
Wohnzimmer mit Zugang zur Dachterrasse
 

Küche mit hochwertiger Einbauküche und Essbereich
Küche mit hochwertiger Einbauküche und Essbereich

Lift bis in beide Ebenen der Wohnung
Lift bis in beide Ebenen der Wohnung
 

Bad 1
Bad 1

Bad 2
Bad 2
 

Diele/Eingangsbereich
Diele/Eingangsbereich

hochwertige Einbauküche
hochwertige Einbauküche
 

Dachterrasse
Dachterrasse

große Doppel-Garage mit Rolltor innerhalb der Tiefgarage
große Doppel-Garage mit Rolltor innerhalb der Tiefgarage
 

großer Kellerraum direkt an der Doppelgarage
großer Kellerraum direkt an der Doppelgarage

Energieausweis
Energieausweis
 

22 m² großer Hobbyraum direkt neben der Doppelgarage
22 m² großer Hobbyraum direkt neben der Doppelgarage


Exposé ist nur zur Information für Interessenten. Eine Weiterverwendung durch Dritte bedarf der vorherigen Genehmigung. In diesem Angebot enthaltene Angaben, Abmessungen und Preise beruhen auf Informationen der Auftraggeber (Eigentümer). Abweichungen sind möglich. Eine Haftung unsererseits ist ausgeschlossen. Zwischenzeitliche Vermietung/Verkauf vorbehalten.
Kontakt / Anfrage
Bei Fragen rufen Sie uns bitte an oder senden Sie uns eine Email. Wir werden uns schnellstmöglich bei Ihnen melden. Bitte hinterlassen Sie Ihre Telefonnummer!

Sie erreichen uns unter:
Tel.: +49 351 - 31 44 17 0 oder +49 174 - 304 5000.
Fax: +49 351 - 31 44 17 22
Email: info@dresdden.de

Ihr Name:
Ihre Email:
Ihre Tel.Nr.:
Nachricht:
 
Mit dem „Abschicken" dieses Kontaktformular stimme ich zu, dass meine Angaben aus dem Kontaktformular zur Beantwortung meiner Anfrage gemäß den Datenschutzbestimmungen von Johannes & Partner zu den dort beschriebenen Zwecken erhoben und verarbeitet werden. Ich habe die Datenschutzerklärung von Johannes & Partner zur Kenntnis genommen.
 
 
© Johannes & Partner Immobilienmakler 02 :33 Uhr | 02.03.2026