Karte
Karte Dresden

Direktsuche
Objekt-ID:

Merkzettel    Merkzettel drucken
 
Adresse: 01099 Dresden - Neustadt , Böhmische Straße 8 WE 13
ID: 6651

Beschreibung:

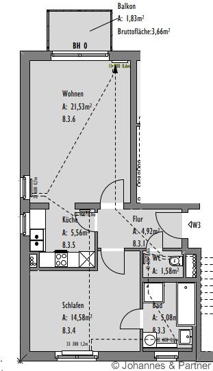
Schöne 2-Zimmer-Wohnung im Neubau mit

* Lift
* Wohnzimmer mit Balkon zur Hofseite
* Bad mit Fenster, Badewanne, Dusche und WM-Anschluss
* PVC-Boden (evtl. neu, je nach Zustand)
* Kellerabteil
* Anmietung eines TG-Stellplatzes ist im Nachbarhaus für ca. 65 € möglich

Angaben aus dem Energieausweis:

Baujahr: 1996                         Objektzustand: gepflegt
Heizungsart: Zentralheizung     Befeuerungsart: Fernwärme
Energiebedarf: 92,4 kWh (m²*a)   Typ: Verbrauchsausweis
Energieeffizienzklasse: C


Grundriss
Grundriss
 

Hausansicht
Hausansicht

Hausansicht
Hausansicht
 


Exposé ist nur zur Information für Interessenten. Eine Weiterverwendung durch Dritte bedarf der vorherigen Genehmigung. In diesem Angebot enthaltene Angaben, Abmessungen und Preise beruhen auf Informationen der Auftraggeber (Eigentümer). Abweichungen sind möglich. Eine Haftung unsererseits ist ausgeschlossen. Zwischenzeitliche Vermietung/Verkauf vorbehalten.
Kontakt / Anfrage
Bei Fragen rufen Sie uns bitte an oder senden Sie uns eine Email. Wir werden uns schnellstmöglich bei Ihnen melden. Bitte hinterlassen Sie Ihre Telefonnummer!

Sie erreichen uns unter:
Tel.: +49 351 - 31 44 17 0 oder +49 174 - 304 5000.
Fax: +49 351 - 31 44 17 22
Email: info@dresdden.de

Ihr Name:
Ihre Email:
Ihre Tel.Nr.:
Nachricht:
 
Mit dem „Abschicken" dieses Kontaktformular stimme ich zu, dass meine Angaben aus dem Kontaktformular zur Beantwortung meiner Anfrage gemäß den Datenschutzbestimmungen von Johannes & Partner zu den dort beschriebenen Zwecken erhoben und verarbeitet werden. Ich habe die Datenschutzerklärung von Johannes & Partner zur Kenntnis genommen.
 
 
© Johannes & Partner Immobilienmakler 08 :43 Uhr | 20.04.2026