Objekt drucken Seite ausdrucken




Ihr Ansprechpartner: Herr Johannes Telefon: 0351 / 31 44 17 0 oder 0174 / 304 5000
 Mietwohnung: 01324 Dresden - Weißer Hirsch , Lahmann WE 9
Objekt-ID: 6489

Beschreibung:

In dem historischen Saal des bekannten Lahmann-Sanatoriums am Weißen Hirsch sind 14 beeindruckende und individuelle Wohneinheiten mit folgender exklusiver Ausstattung entstanden:

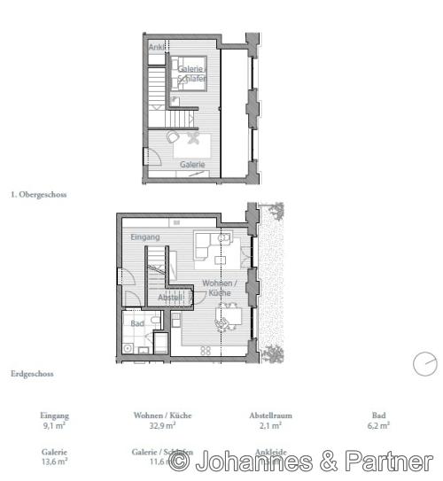
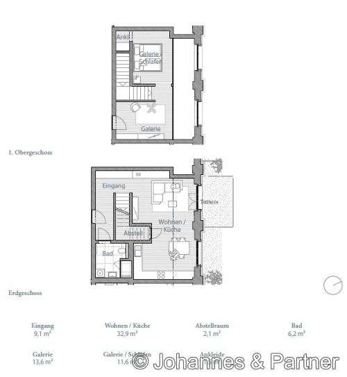
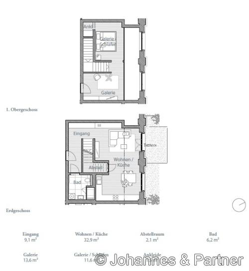
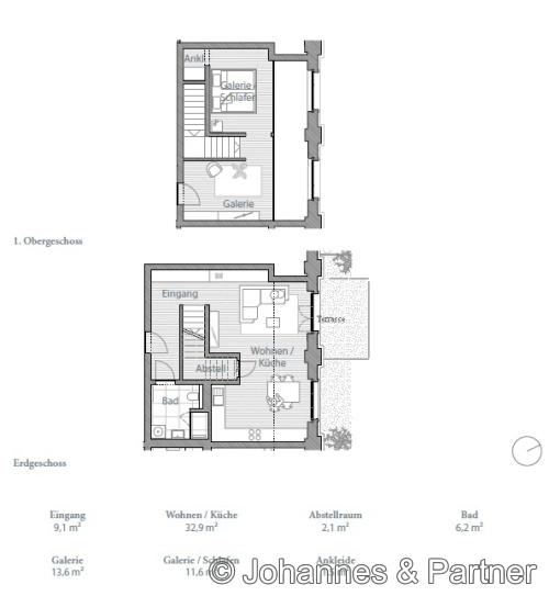
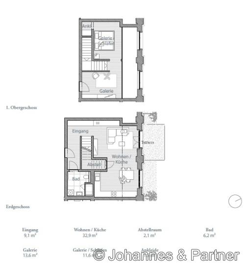
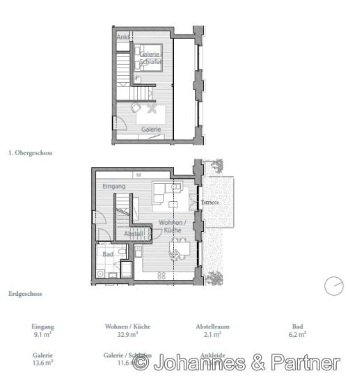
* Terrasse
* großzügige 2,5-Zimmer-Maisonette-Wohnung mit großen Fenstern
* aufwendig bemalte und teilweise vergoldete Holkassettendecken im gemeinschaftlichen Treppenhaus
* Eichenparkett
* Fußbodenheizung
* modern und hell geflieste Bäder mit ebenerdigen Duschen und/oder Badewanne
* teilweise aufwendige Vertäfelungen, historische Gesimse und Stuck
* dreifach verglaste Fenster
* Lüftungs- und Wärmerückgewinnungsanlage
* Gegensprechanlage mit Video
* Fern-/Kraft-Wärmekopplung
* Duplex-Tiefgaragenstellplätze ab 100 € je nach Größe möglich
* Ladestation in der Tiefgarage am Stellplatz möglich
Das Objekt unterliegt nicht den GEG-Anforderungen.




Grundriss


























Treppenhaus


Treppenhaus


Exposé ist nur zur Information für Interessenten. Eine Weiterverwendung durch Dritte bedarf der vorherigen Genehmigung. In diesem Angebot enthaltene Angaben, Abmessungen und Preise beruhen auf Informationen der Auftraggeber (Eigentümer). Abweichungen sind möglich. Eine Haftung unsererseits ist ausgeschlossen. Zwischenzeitliche Vermietung/Verkauf vorbehalten.


Bürogemeinschaft Johannes & Partner - Loschwitzer Straße 21 - 01309 Dresden - Tel.: 0351 31 44 17 0