Objekt drucken Seite ausdrucken




Ihr Ansprechpartner: Herr Johannes Telefon: 0351 / 31 44 17 0 oder 0174 / 304 5000
 Gewerbe: 01097 Dresden - Neustadt , Hospitalstr. 12 Hinterhaus
Objekt-ID: 6510

Beschreibung:

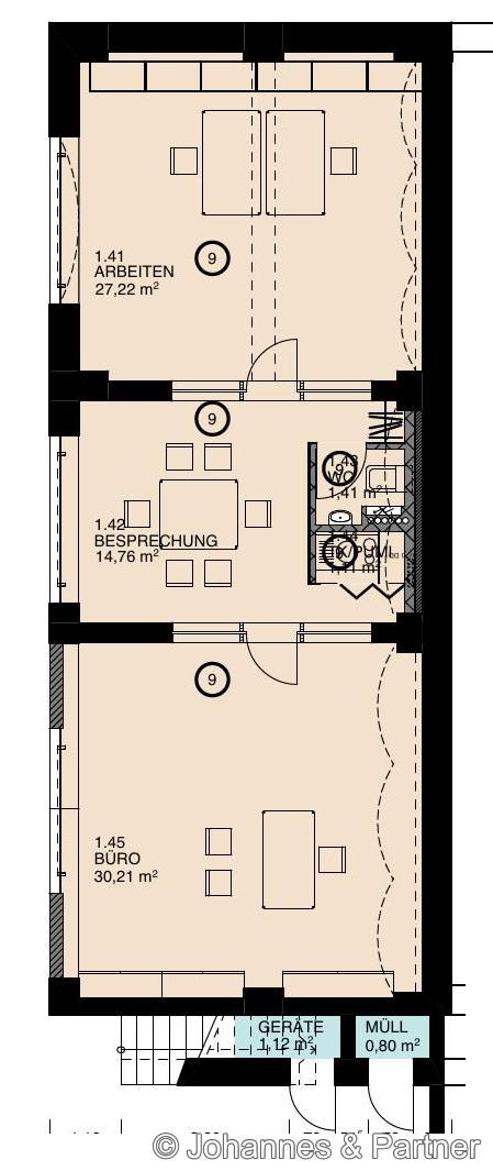
Moderne Bürofläche im charmanten, denkmalgeschützten Kutscherhaus in Top-Lage der Inneren Neustadt.

Die Gewerbeeinheit befindet sich im Erdgeschoss des ruhigen Hinterhauses und ist wie folgt ausgestattet:

* Fliesenboden
* kleine Teeküche mit Einrichtung
* 1 WC
* Glasschiebewände zwischen den Räumen
* Bodentanks für Kabelmanagement
* 2 Pkw-Stellplätze im Hof (á 45 €/Monat + Mwst.)
* Archivraum im Dachboden des Vorderhauses (30 €/Monat + Mwst.)

Die Vermietung erfolgt mit Ausweisung der Mehrwertsteuer.

Dieses Gebäude unterliegt nicht den Anforderungen der EnEV.




Hausansicht











Exposé ist nur zur Information für Interessenten. Eine Weiterverwendung durch Dritte bedarf der vorherigen Genehmigung. In diesem Angebot enthaltene Angaben, Abmessungen und Preise beruhen auf Informationen der Auftraggeber (Eigentümer). Abweichungen sind möglich. Eine Haftung unsererseits ist ausgeschlossen. Zwischenzeitliche Vermietung/Verkauf vorbehalten.


Bürogemeinschaft Johannes & Partner - Loschwitzer Straße 21 - 01309 Dresden - Tel.: 0351 31 44 17 0