Objekt drucken Seite ausdrucken




Ihr Ansprechpartner: Herr Johannes Telefon: 0351 / 31 44 17 0 oder 0174 / 304 5000
 Mietwohnung: 01309 Dresden - Blasewitz , Karasstraße 1 WE 6
Objekt-ID: 6573

Beschreibung:

Helle und sehr schöne 4-Zimmer-Maisonette-Wohnung im denkmalgeschützten Altbau in zentraler Lage Nähe Schillerplatz und Nähe Elbe mit
* Balkon zur ruhigen Hofseite
* großem, hellem Wohnzimmer
* Küche mit Fenster
* Laminatboden
* goßem Bad mit Fenster, Badewanne und Dusche in der oberen Ebene
* Gäste-WC in der unteren Ebene
* gebrauchte Einbauküche kann übernommen werden
* Waschmaschinenanschluss im Kellergeschoss
* geräumiger Keller
* Hundehaltung nicht erwünscht
* langfristiges Mietverhältnis gewünscht
* Vermietung erfolgt ohen Parkplatz 

Angaben aus dem Energieausweis:

Baujahr: 1900/2000                      Objektzustand: gepflegt
Heizungsart: Zentralheizung         Typ: Verbrauchsausweis
Befeuerungsart
: Nah-/Fernwärme HW fossil
Energiebedarf: 84 kWh (m²*a)     Energieeffizienzklasse: C




Hausansicht


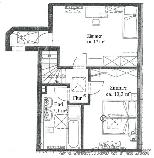
Grundriss untere Ebene


Grundriss obere Ebene


Balkon


Zimmer


Küche mit gebrauchter Einbauküche


Bad mit Wanne und Dusche und Fenster





Exposé ist nur zur Information für Interessenten. Eine Weiterverwendung durch Dritte bedarf der vorherigen Genehmigung. In diesem Angebot enthaltene Angaben, Abmessungen und Preise beruhen auf Informationen der Auftraggeber (Eigentümer). Abweichungen sind möglich. Eine Haftung unsererseits ist ausgeschlossen. Zwischenzeitliche Vermietung/Verkauf vorbehalten.


Bürogemeinschaft Johannes & Partner - Loschwitzer Straße 21 - 01309 Dresden - Tel.: 0351 31 44 17 0