Objekt drucken Seite ausdrucken




Ihr Ansprechpartner: Herr Johannes Telefon: 0351 / 31 44 17 0 oder 0174 / 304 5000
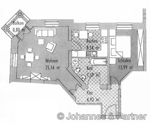
Villa in Blasewitz 2-Zimmer mit ca. 65 m²

 Mietwohnung: 01309 Dresden - Blasewitz , Wägnerstraße 16 WE 5
Objekt-ID: 6616

Beschreibung:

helle und sehr schöne 2-Zimmer-Wohnung in aufwendig sanierter Villa in ruhiger und grüner Bestlage von Dresden-Blasewitz mit
* kleinem Balkon am Wohnzimmer
* Parkett,
* Küche mit Fenster
* Bad mit Badewanne innenliegend
* Keller
* keine Haustiere
* Mindestmietdauer 24 Monate

Sehr schönes Haus in bevorzugter Lage von Dresden mit guter Anbindung zum Schillerplatz

Angaben aus dem Energieausweis:

Baujahr: 1890/2002                       Objektzustand: gepflegt
Heizungsart: Zentralheizung          Befeuerungsart: Erdgas schwer
Energiebedarf: 90 kWh (m²*a)      Typ: Verbrauchsausweis
Energieeffizienzklasse:
C




Grundriss


Hausansicht mit Erker


Balkon und Ausblick





Wohnzimmer





Bad mit Badewanne


Exposé ist nur zur Information für Interessenten. Eine Weiterverwendung durch Dritte bedarf der vorherigen Genehmigung. In diesem Angebot enthaltene Angaben, Abmessungen und Preise beruhen auf Informationen der Auftraggeber (Eigentümer). Abweichungen sind möglich. Eine Haftung unsererseits ist ausgeschlossen. Zwischenzeitliche Vermietung/Verkauf vorbehalten.


Bürogemeinschaft Johannes & Partner - Loschwitzer Straße 21 - 01309 Dresden - Tel.: 0351 31 44 17 0