Karte
Karte Dresden

Direktsuche
Objekt-ID:

Merkzettel    Merkzettel drucken
 
Adresse: 01097 Dresden - Neustadt , Hospitalstr. 12 Hinterhaus
ID: 6510

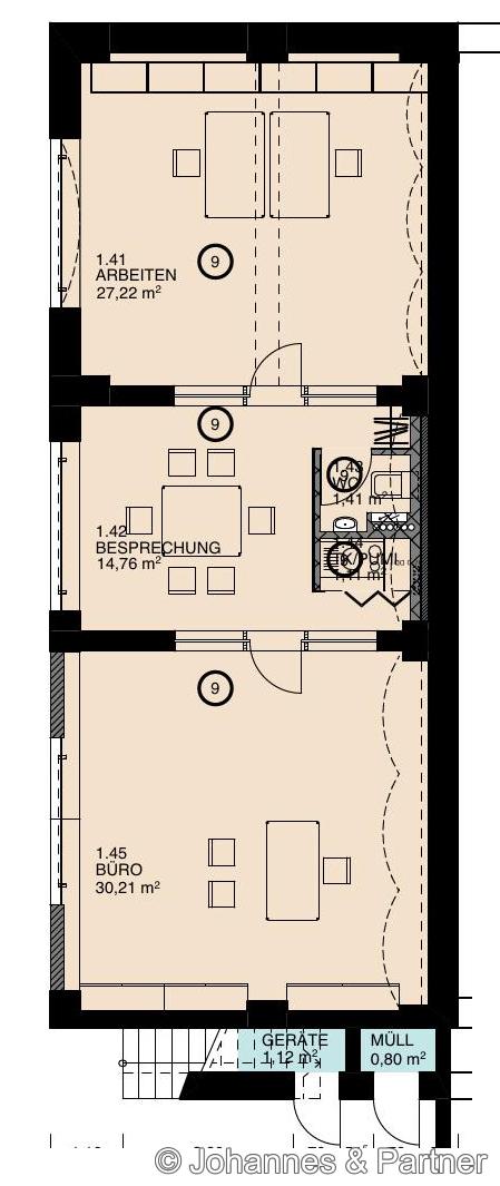
Beschreibung:

Moderne Bürofläche im charmanten, denkmalgeschützten Kutscherhaus in Top-Lage der Inneren Neustadt.

Die Gewerbeeinheit befindet sich im Erdgeschoss des ruhigen Hinterhauses und ist wie folgt ausgestattet:

* Fliesenboden
* kleine Teeküche mit Einrichtung
* 1 WC
* Glasschiebewände zwischen den Räumen
* Bodentanks für Kabelmanagement
* 2 Pkw-Stellplätze im Hof (á 45 €/Monat + Mwst.)
* Archivraum im Dachboden des Vorderhauses (30 €/Monat + Mwst.)

Die Vermietung erfolgt mit Ausweisung der Mehrwertsteuer.

Dieses Gebäude unterliegt nicht den Anforderungen der EnEV.


Hausansicht
Hausansicht
 


 



Exposé ist nur zur Information für Interessenten. Eine Weiterverwendung durch Dritte bedarf der vorherigen Genehmigung. In diesem Angebot enthaltene Angaben, Abmessungen und Preise beruhen auf Informationen der Auftraggeber (Eigentümer). Abweichungen sind möglich. Eine Haftung unsererseits ist ausgeschlossen. Zwischenzeitliche Vermietung/Verkauf vorbehalten.
Kontakt / Anfrage
Bei Fragen rufen Sie uns bitte an oder senden Sie uns eine Email. Wir werden uns schnellstmöglich bei Ihnen melden. Bitte hinterlassen Sie Ihre Telefonnummer!

Sie erreichen uns unter:
Tel.: +49 351 - 31 44 17 0 oder +49 174 - 304 5000.
Fax: +49 351 - 31 44 17 22
Email: info@dresdden.de

Ihr Name:
Ihre Email:
Ihre Tel.Nr.:
Nachricht:
 
Mit dem „Abschicken" dieses Kontaktformular stimme ich zu, dass meine Angaben aus dem Kontaktformular zur Beantwortung meiner Anfrage gemäß den Datenschutzbestimmungen von Johannes & Partner zu den dort beschriebenen Zwecken erhoben und verarbeitet werden. Ich habe die Datenschutzerklärung von Johannes & Partner zur Kenntnis genommen.
 
 
© Johannes & Partner Immobilienmakler 16 :39 Uhr | 11.10.2025