Karte
Karte Dresden

Direktsuche
Objekt-ID:

Merkzettel    Merkzettel drucken
 
Adresse: 01309 Dresden - Blasewitz , Karasstraße 1 WE 6
ID: 6573

Beschreibung:

Helle und sehr schöne 4-Zimmer-Maisonette-Wohnung im denkmalgeschützten Altbau in zentraler Lage Nähe Schillerplatz und Nähe Elbe mit
* Balkon zur ruhigen Hofseite
* großem, hellem Wohnzimmer
* Küche mit Fenster
* Laminatboden
* goßem Bad mit Fenster, Badewanne und Dusche in der oberen Ebene
* Gäste-WC in der unteren Ebene
* gebrauchte Einbauküche kann übernommen werden
* Waschmaschinenanschluss im Kellergeschoss
* geräumiger Keller
* Hundehaltung nicht erwünscht
* langfristiges Mietverhältnis gewünscht
* Vermietung erfolgt ohen Parkplatz 

Angaben aus dem Energieausweis:

Baujahr: 1900/2000                      Objektzustand: gepflegt
Heizungsart: Zentralheizung         Typ: Verbrauchsausweis
Befeuerungsart
: Nah-/Fernwärme HW fossil
Energiebedarf: 84 kWh (m²*a)     Energieeffizienzklasse: C


Hausansicht
Hausansicht
 

Grundriss untere Ebene
Grundriss untere Ebene

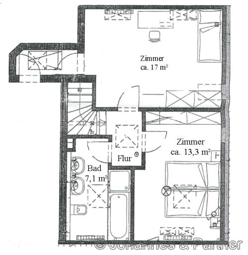
Grundriss obere Ebene
Grundriss obere Ebene
 

Balkon
Balkon

Zimmer
Zimmer
 

Küche mit gebrauchter Einbauküche
Küche mit gebrauchter Einbauküche

Bad mit Wanne und Dusche und Fenster
Bad mit Wanne und Dusche und Fenster
 



Exposé ist nur zur Information für Interessenten. Eine Weiterverwendung durch Dritte bedarf der vorherigen Genehmigung. In diesem Angebot enthaltene Angaben, Abmessungen und Preise beruhen auf Informationen der Auftraggeber (Eigentümer). Abweichungen sind möglich. Eine Haftung unsererseits ist ausgeschlossen. Zwischenzeitliche Vermietung/Verkauf vorbehalten.
Kontakt / Anfrage
Bei Fragen rufen Sie uns bitte an oder senden Sie uns eine Email. Wir werden uns schnellstmöglich bei Ihnen melden. Bitte hinterlassen Sie Ihre Telefonnummer!

Sie erreichen uns unter:
Tel.: +49 351 - 31 44 17 0 oder +49 174 - 304 5000.
Fax: +49 351 - 31 44 17 22
Email: info@dresdden.de

Ihr Name:
Ihre Email:
Ihre Tel.Nr.:
Nachricht:
 
Mit dem „Abschicken" dieses Kontaktformular stimme ich zu, dass meine Angaben aus dem Kontaktformular zur Beantwortung meiner Anfrage gemäß den Datenschutzbestimmungen von Johannes & Partner zu den dort beschriebenen Zwecken erhoben und verarbeitet werden. Ich habe die Datenschutzerklärung von Johannes & Partner zur Kenntnis genommen.
 
 
© Johannes & Partner Immobilienmakler 20 :24 Uhr | 15.01.2026